Sierra Residence – Greece | Presented by Global Estates®
- €253,000 Euros
Sierra Residence – Greece | Presented by Global Estates®
- €253,000 Euros
Overview
- Apartment, Residential
- 1 & 2 Bedroom Apartments
- 333.6 SQFT - 1851.39 SQFT
Description
Sierra Residence is a modern, 4-story residential project in a well-connected area of Peristeri, Athens. It offers one of the most accessible entry points to the Greek Golden Visa program.
Project Features:
Immediate Residency: Visa eligibility Qualifies for the Greece Golden Visa Program, granting permanent residency and visa-free travel across the 29 Schengen countries. No minimum stay is required to maintain the permit
Completion Timeline: Scheduled for completion in May 2027.
Guaranteed Returns: Includes a 3-Year Rental Guarantee at 3% per annum, ideal for buy-to-let investors.
High-Demand Location: Located in Peristeri, a vibrant district with easy access to the Agios Antonios Metro Station (721m) and essential services, ensuring strong rental demand.
Exclusive Scale: The building comprises just 9 well-designed apartments across 4 floors.
Only 3 units available. Act immediately to secure a qualifying unit.
SIERRA RESIDENCE – Golden Visa Eligible Investment from €253,000 Euros
Property Type: Modern Residential Apartments
Only 3 Units Available – High Demand Project
Golden Visa Eligibility
Sierra Residence offers Greece Golden Visa eligibility starting from €253,000 Euros making it one of the most accessible entry points into the Greek residency-by-investment program through real estate ownership.
This allows non-EU investors to start the Golden Visa process with a qualifying property purchase at this level, subject to Greek immigration regulations and legal confirmation.
Greece Golden Visa, Developer-Confirmed Eligibility
Sierra Residences qualifies under the Greece Golden Visa Program, which grants permanent residence to non-EU investors through real estate investment .
Golden Visa Key Facts (as provided by the Developer)
- Minimum qualifying investment: from €250,000 Euros depending on location and property type
- Processing time: approximately 3–5 months
- Minimum stay requirement: None
- Residency type: Permanent residence, renewable as long as the property is retained
- Application can be initiated remotely via Power of Attorney
Who Can Be Included
- Main applicant (non-EU citizen, age 14+)
- Spouse
- Children under 21 (and in certain cases up to 24)
- Parents of both spouses
(Up to three generations under one application)
Key Benefits of the Greece Golden Visa
- Visa-free travel across the Schengen Area
- No residency requirement to maintain the permit
- Right to rent out the property and earn income
- Permanent residency renewable every 5 years
- Eligibility to apply for Greek citizenship after 7 years of residency, subject to legal requirements
- Access to Greece’s EU, Eurozone, and Schengen member state advantages
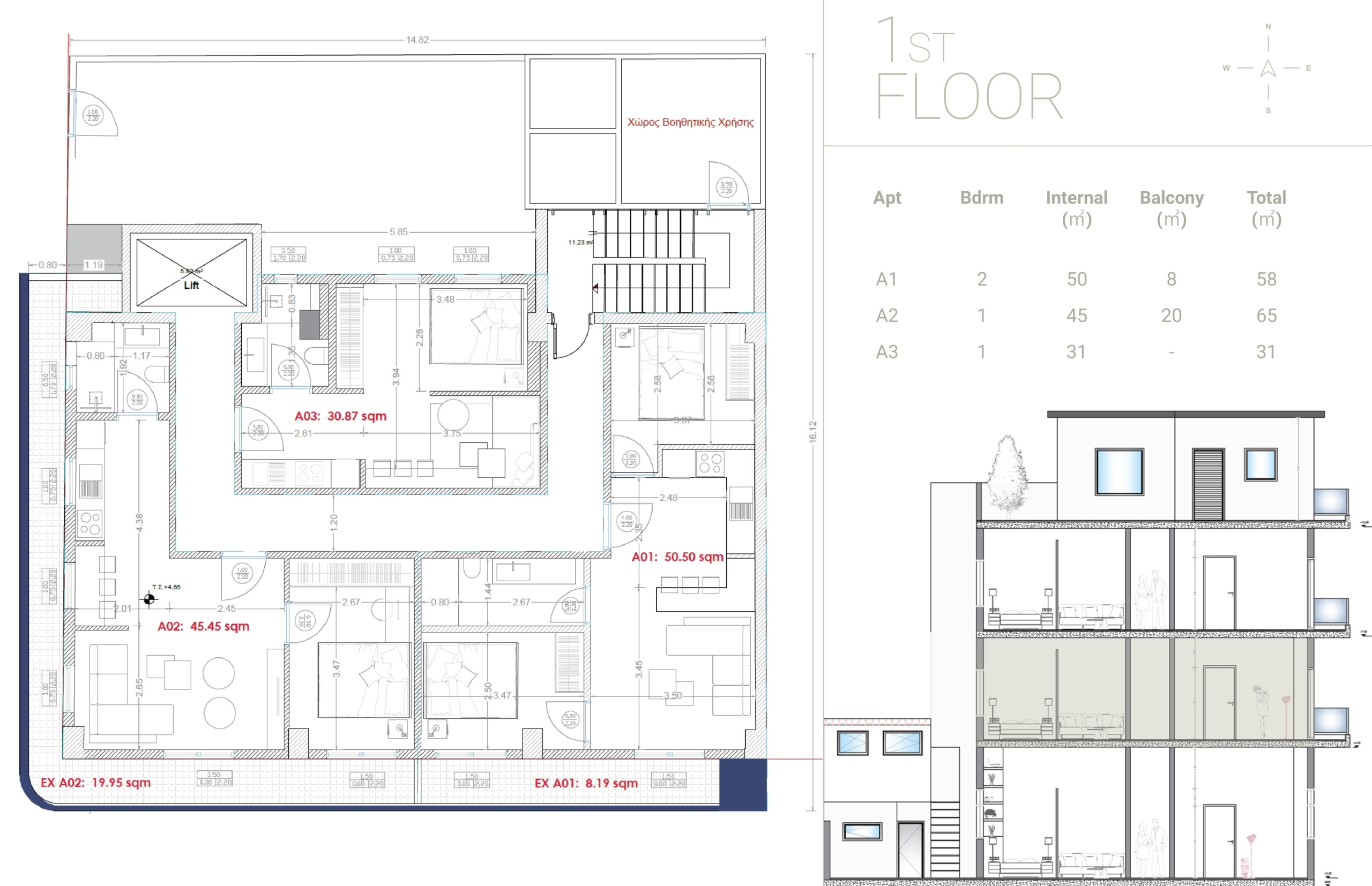
Available Units
1 Bedroom Apartment (2nd Floor)
- Internal Area: 30.87 m²
- Total Area: 30.87 m²
- Price: €253,000 Euros
- Golden Visa eligible – entry-level unit
2 Bedroom Apartment (Ground Floor)
- Internal Area: 53.2 m²
- Balcony: 6.68 m²
- Total Area: 59.88 m²
- Price: €290,000 Euros
2 Bedroom Apartment (Ground Floor)
- Internal Area: 55.75 m²
- Balcony: 5.75 m²
- Total Area: 61.5 m²
- Price: €300,000 Euros
What’s Included
- Free electrical appliances, including air conditioning in all rooms, oven, stove, and kitchen hood
- C-Year Rental Guarantee at 3% per annum
- Modern layouts ideal for both rental income and personal use
Why Invest in Sierra Residence
Sierra Residence combines low Golden Visa entry pricing, a long-term rental guarantee, and limited remaining inventory. With most units already sold, this project is ideal for investors seeking EU residency, stable returns, and capital protection in a euro-denominated market.
Ideal For
- Greece Golden Visa applicants
- First-time EU property investors
- Buy-to-let clients seeking guaranteed returns
- Investors looking for early-stage residency planning
Disclaimer:
Golden Visa eligibility, investment thresholds, and immigration requirements are governed by Greek law and may change. This document is for informational purposes only and does not constitute legal or immigration advice. Final eligibility is subject to confirmation by qualified legal professionals and Greek authorities, Prices, availability, specifications, and delivery timelines are indicative and may change without prior notice. This document is for informational purposes only and does not constitute legal or investment advice.
Address
Open on Google Maps-
Country: Greece
Details
Updated on January 1, 2026 at 5:35 am-
Price €253,000 Euros
-
Property Size 333.6 SQFT - 1851.39 SQFT
-
Bedrooms 1 & 2 Bedroom Apartments
-
Property Type Apartment, Residential
Contact Information
View ListingsVideo
Similar Listings
- Global Estates®
















